【注文住宅】29坪以下!ペットにやさしい狭小住宅 間取りのご紹介
アルボスの古谷です。
秋が短くなっている気がするという話をこの時期になるとよく耳にしますが、今年の秋もあっという間にやってきましたね。
運動会の声援が街中で聞こえてきたりすると、一生懸命に走る小学生の姿が目に浮かんで思わず顔がほころびます。
朝晩の風が心地良く、短い期間だからこそ、このさわやかな季節を満喫したいと思います。
突然ですが、皆さんはペットを飼っていますか?
アルボスの家は「狭小住宅」が強みのひとつですが、都心部でペットと快適に暮らすのは難しいと思われがちです。
しかし、狭小住宅でもペットが喜ぶ工夫はたくさんあります。
今回は、アルボスの家の強みである「狭小」間取りの中から、ペットにやさしい間取りをご紹介します。
ペットにやさしい狭小間取り
◆ペットヤード
こちらは「ペットヤード」をLDKの一角に設けた間取りです。

「ペットヤード」とは「ペットのためのお庭」のことで、ペットが安全に遊んだりくつろいだりできる専用スペースのことを言います。
テラスに面して出入口と足洗い場を設置すれば出入りもスムーズ、外遊びも快適に楽しめれば、ペットの運動不足解消やストレス軽減につながりますね。
ペットヤードは汚れ対策でタイル敷きがお勧めです。
換気の窓も設ければ臭い対策にもなります。
出入口には、日差し/雨対策で日よけや庇を取り付けるとより良いですね。
注意点として、テラスにはフェンス設置や、芝や植物などがあれば害虫対策が必須となります。
→間取りの詳細はコチラ:仙台市で25坪2LDKの間取り 都市型コンパクト住宅
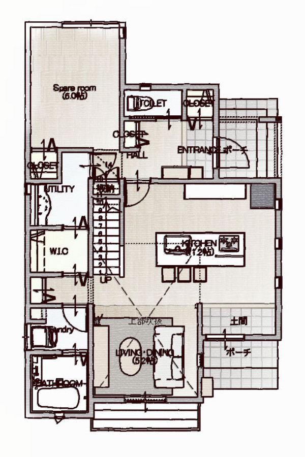
◆外土間

こちらは高い外壁で囲った外土間のある間取りです。
外部からの視線を気にせずプライバシーが保たれ、日光を浴びながらペットと安心して過ごせるぜいたくな空間です。
室内側にもタイル敷きの内土間をペットのスペースとして利用すれば、気候や生活様式に合わせた柔軟な使い方が可能になります。
お庭ではどうしても害虫対策の徹底が難しいような場合も、このようにタイル敷きなどで舗装してああれば、管理するうえで衛生的です。
またお庭だとフェンスなどが必要になりますが、外壁に囲われているので脱走などの恐れもなく安心ですね。
→間取りの詳細はコチラ:仙台市で26坪3LDKの間取りの狭小住宅:吹抜けの土間と直結リビングで広々空間の家
◆洗面への好アクセスの帰宅動線

こちらはコロナ禍以降人気の、玄関から洗面へのアクセスが良い間取りです。
足洗い場までは設けられないですが、洗面ユーティリティスペースで足を拭いたりできるので、家の中を汚さずにいいですね。
この間取りでは浴室との間にウォークインクロークを挟んで家事動線を優先させています。
お散歩好きのワンちゃんがいるご家庭では、洗面ユーティリティから浴室への動線を優先させても良いかもしれません。
LDK内にある土間に面したポーチからのアプローチが可能でしたら、土間側のポーチに足洗い場を設けると良いですね。
→間取りの詳細はコチラ:仙台市で29坪3LDKの間取りでも暮らしは悠々センターキッチンコロナ対応洗面室の間取り
今回は、ペットにやさしい狭小住宅の間取りをご紹介しました。
アルボスの家は、「強くて賢い、おしゃれな木の家」を目指しております。
お客様の暮らしに寄り添う住まいづくりのお役に少しでも立てれば嬉しいです。
皆さんのお困りごと、心配ごとがあればお気軽にご相談ください。
二級建築士
-
2026.03.23
【仙台市】狭小住宅で使える補助金は?2026年最新の木の家を賢く建てるコツ -
2026.03.12
知らないと損する住宅ローンの話 -
2026.03.09
【仙台市 狭小住宅】花粉・春の雨を玄関で防ぐ!家事ラクな間取りの工夫 -
2026.02.19
【仙台市 狭小住宅】朝、布団から出られないのは『家の性能』のせい?仙台の冬を魔法瓶のように暖かく過ごす3つの秘訣 -
2026.01.28
【仙台市 注文住宅】「1,000万円台からの家づくり」仙台で地震に強く、デザインも妥協しない理想の住まいを叶えるには? -
2026.01.21
【仙台市 注文住宅】平屋は寒いって本当?結露を防いで暖かく暮らすコツは? -
2025.12.25
【仙台市 注文住宅】2026年補助金は最大110万円超!GX志向型やZEHをプロが解説 -
2025.12.16
【仙台市 注文住宅】後悔しないワークスペース計画!施工事例 -
2025.11.28
【仙台市 注文住宅】外と中がつながる 土間空間の魅力~施工事例から -
2025.11.18
【仙台市 注文住宅】「木」を感じるインテリア~施工事例のご紹介
最新記事
- 03月23日 【仙台市】狭小住宅で使える補助金は?2026年最新の木の家を賢く建てるコツ
- 03月12日 知らないと損する住宅ローンの話
- 03月09日 【仙台市 狭小住宅】花粉・春の雨を玄関で防ぐ!家事ラクな間取りの工夫
- 02月19日 【仙台市 狭小住宅】朝、布団から出られないのは『家の性能』のせい?仙台の冬を魔法瓶のように暖かく過ごす3つの秘訣
- 01月28日 【仙台市 注文住宅】「1,000万円台からの家づくり」仙台で地震に強く、デザインも妥協しない理想の住まいを叶えるには?

